在线询价微信咨询
在线定制
欢迎进入海湾安全技术有限公司官网!
海湾消防设备销售、改造、维修

专业一站式消防解决方案提供商

4006-598-11915995940119
联系我们Contact us
全国咨询热线15995940119

海湾安全技术有限公司

公司地址:苏州市常熟市黄河路275号

联系电话:4006-598-119

公司邮箱:1334605518@qq.com

您的位置:首页>>新闻资讯>>公司新闻
公司新闻

余压监控系统设置要求

作者: 发布时间:2026-02-10 15:16:05点击:1490

信息摘要:

余压监控系统设置要求

一、系统验收规定

《建筑防烟排烟系统技术标准》GB 51251-2017
8.2.5 机械防烟系统的验收方法及要求应符合下列规定
      1 选取送风系统末端所对应的送风最不利的三个连续楼层模拟起火层及其上下层,封闭避难层(间)仅需选取本层,测试前室及封闭避难层(间)的风压值及疏散门的门洞断面风速值,应分别符合本标准第3.4.4条和第3.4.6条的规定,且偏差不大于设计值的10%。
    根据现行 标准《消防设施通用规范》GB 55036-2022第11.2.5条和《建筑防烟排烟系统技术标准》GB 51251-2017第3.4.4条规定,设置机械加压送风系统的建筑,机械加压送风量应满足走廊至前室至楼梯间的压力呈递增分布,前室、封闭避难层(间)与走道之间的压差应为25Pa~30Pa;楼梯间与走道之间的压差应为40Pa~50Pa;当系统余压值超过更大 允许压力差时应采取泄压措施。
      余压监控系统是替代余压阀的合适方案。

二、余压监控系统组成

      余压监控系统由余压监控器、余压控制器、余压传感器、泄压阀执行器及管线组成,通过实时监测楼梯间、前室(合用前室)、走道之间的余压值,控制相应设备进行调节,实现相应空间之间的余压值保持在设定值范围内。

      系统组成见下表。

序号
设备名称
设备功能
系统
设计要求
安装位置
1
余压
监控器

收集、记录、显示余压控制器、风阀执行器、余压传感器的状态;

故障信息声光显示报警功能

余压监控器与余压控制器之间宜采用RS485或CAN总线通讯协议,总线通讯距离不小于500m;

余压监控器与余压控制器通信的回路不少于2路;

每个回路连接的余压控制器不少于32个。

消防控制室

2
余压
控制器
收集并处理余压传感器的信号;             控制泄压阀执行器的开闭。

余压控制器与余压传感器之间宜为二总线通讯,通讯距离不少于500 m

每个余压控制器可连接不少于32个余压传感器。

①设置于加压风机控制箱内;

设置于加压送风机控制箱旁专用余压控制箱内。

3
余压
传感器

监测前室、楼梯间内的余压;

将余压值上传给余压控制器;

显示安装位置地址码信息、余压实时检测值,余压超范围报警及通讯异常报警。 

余压传感器量程范围应不小于100Pa;        

精度等级应不低于1.0;

压差值精度±1 Pa

前室;
楼梯间
4
泄压阀
执行器

①根据余压控制器的要求控制泄压阀的开闭动作;

并将泄压阀开闭状态信号发送给余压控制器的功能。

泄压阀执行器应能受控完成开闭动作,并反馈状态信号

安装于泄压阀上

三、系统示意图

1770707821292425.png

四、系统设备安装

      1、余压监控器

      余压监控器设置于消防控制室,落地或壁挂安装。

     2、余压控制器

      余压控制器应设置于加压送风机控制箱内,或设置于加压送风机控制箱旁独立的余压控制箱内,并应设置明显标志。

      3、余压传感器 

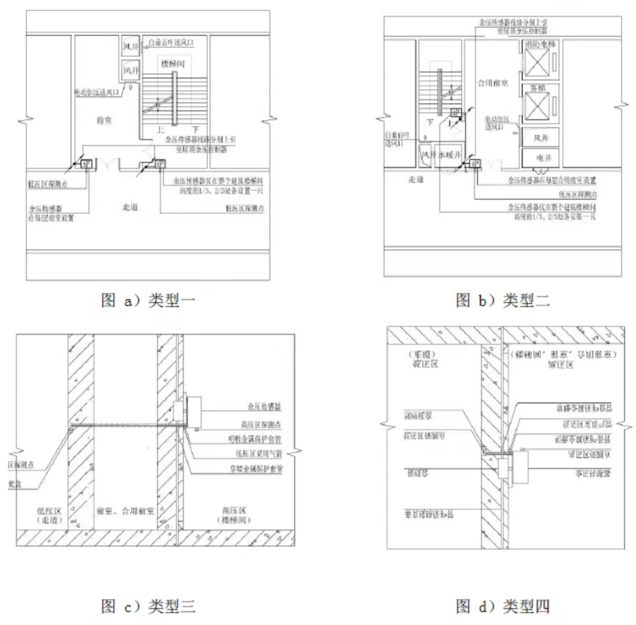
      余压传感器设置于防烟楼梯间(或设置机械加压送风系统的封闭楼梯间)及其前室(或合用前室)内。

     (1) 余压传感器的设置应满足下表要求。

序号
余压传感器
设置位置
余压传感器
设置数量
说明
1
楼梯间的前室(或合用前室)
每层设置1台余压传感器
/
2
楼梯间
应设置2台余压传感器
分别设置于约1/4、3/4高度处
3
余压传感器的电源由余压控制器集中供给,余压控制器电源由消防电源专用回路供给。

       (2)余压传感器安装应满足以下要求: 

      余压传感器应安装于高压区,上缘距顶0.1m~0.5m壁挂安装; 

      余压传感器低压区的气管座宜安装在预埋86底盒内; 

      余压传感器引气管安装于墙面或顶板下0.1m~0.5m,但不应有U型路由; 

      引气管明敷时应采用金属管保护,穿墙时应预埋金属套管保护。 

       (3)余压传感器安装示意如下图所示。

1770707868508758.png

五、系统布线

      余压监控系统的线缆的敷设应按火灾自动报警系统的布线要求执行,线缆的选择及敷设应满足以下要求: 

      1、余压监控器与余压控制器:采用阻燃性能不低于B1级耐火导线NH-RVSP-2×2.5㎜²; 

      2、余压控制器与余压传感器:采用阻燃性能不低于B1级耐火导线NH-RVSP-2×2.5㎜²;

      3、余压控制器与泄压执行器:NH-RVV-7×0.75㎜²。


本文标签:余压监控系统
在线客服
联系方式

热线电话

15995940119

上班时间

周一到周五

公司电话

4006-598-119

二维码
线