特点
海湾GST-LD-8331模块箱内部装有 GST-LD-8325 模块和 GST-AS-300 安全栅(以下简称安全栅),可 与 J-SAF-GST9213A(Ex)消火栓按钮配接,组成本质安全型防爆系统。一旦发生火灾,现场人员 按下消火栓报警按钮,模块将报警信号通过总线传入控制器,控制器会显示出该编码地址的报警信 号。模块箱具有检线功能,当模块出现故障时,控制器会显示出该编码地址的故障信号。模块采用 电子编码方式,可通过我公司生产的 GST-BMQ-2 型电子编码器进行现场编码。模块箱应安装在安全区域。
主要技术指标
(1) 工作电压:信号总线电压:24V; 允许范围:16V~28V 电源总线电压:DC24V; 允许范围:DC20V~DC28V
(2) 工作电流: 总线:监视电流≤1mA,报警电流≤1.5mADC24V:监视电流≤10mA,报警电流(不包括有源输出端口的输出电流)≤60mA
(3) 有源输出:DC24V/100mA
(4) 连接设备容量:最多可配接 10 只 J-SAF-GST9213A(Ex)消火栓按钮
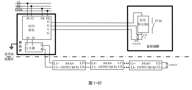
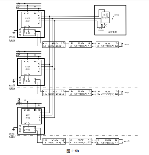
(5) 模块箱并联使用数量:最多 3 个 GST-LD-8331 模块箱并联使用控制一个设备。
(6) 安全栅参数:GST-AS-300 型安全栅,U0=28V,I0=93mA,L0≤4.0mH,C0≤0.083F
(7) 使用环境: 温度:-10℃~+55℃ 相对湿度≤95%,不凝露
(8) 防护等级:IP66
(9) 外形尺寸:196mm×215mm×86mm
结构特征、安装与布线
(1) 模块箱外形示意图如图 1-54:

(2) 安装方法 模块箱安装可用两只 M6×60 膨胀螺栓将其固定在墙壁上,安装尺寸如图 1-55 所示

模块箱接线端子如图 1-56 所示。

其中本安侧端子为安全栅端子,非本安侧端子为模块端子: Z1、Z2:接控制器总线,无极性 D1、D2:接直流 24V,无极性 I、G:输入 2 端子,无源输入,连接消防泵反馈端 O、G:输出端,有源输出,24V/100mA 3、4:安全栅 3、4 两端,接消火栓报警按钮,3 为正,4 为负模块箱应安装在安全区域,本安 侧和非本安侧接线应分开,并保持一定距离(至少为 50mm)。 模块箱内含 GST-AS-300 型齐纳安全栅,主要技术参数参见 章 5.2 节。
布线要求:信号总线 Z1、Z2 采用耐火 RVS 型双绞线,截面积≥1.0mm2 ;电源线 D1、D2 采用耐 火 BV 线,截面积≥1.5mm2 。安全栅至报警按钮间的电缆应选用截面积≥1.0mm2 的本安电缆,且电缆 间分布电容不得大于 0.083μF,分布电感不得大于 4.0mH。 本安电缆的长度计算参见 GST-LD-8332 中布线要求的相关内容。
应用方法
每个模块箱可配接 10 只消火栓按钮,消火栓按钮需串联连接。在消火栓按钮末端和消防泵反 馈端需接 4.7k终端电阻。模块箱应安装在安全区域,本安侧和非本安侧接线应分开并保持一定距 离(至少为 50mm)。外壳(出厂时已经与安全栅接地端子连接)必须就近可靠接地,连接螺钉必须拧 紧,不可松动,接地电阻不能大于 4。 模块箱应用示意图如图 1-57、图 1-58 所示,其中图 1-57 为单个模块箱控制一台消防泵的情 况,图 1-58 为多个模块箱同时控制一台消防泵的情况(模块箱数量不大于 3 台)。输出端和输入 2 端的 2 个 G 端子内部相连,实际布线只需接其中一个即可。


模块箱不能和 J-SAM-GST9124A 消火栓按钮并联使用, J-SAM-GST9124A 消火栓按钮需要单独加 启泵继电器控制。
模块反馈端不能和其他设备并联,如果需要接入其他设备检测反馈信息,反馈端需单独接线。


苏公网安备32058102002318号
客服1