特点
海湾GST-LD-N8401(Ex)总线隔离式安全栅采用隔离式安全栅设计方案,用于连接需接入普通总线的 本安编码产品,组成本质安全型防爆系统。安全栅应安装在安全区域。本安侧短路不影响非本安侧, 完全用硬件实现信号转换,信号延迟低。
主要技术指标
(1) 工作电压: 信号总线电压:24V; 允许范围:16V~28V 电源总线电压:DC24V; 允许范围:DC20V~DC28V
(2) 工作电流: 总线:电流<2.5mA DC24V:电流<150mA
(3) 设备容量:最多可配接 32 只本安编码设备。
(4) 本安参数:Um: 250V Uo:28V Io:115mA Po:0.8W Co:0.083μF Lo:4mH
(5) 使用环境:温度: -10℃~+55℃ 相对湿度≤95%,不凝露
(6) 安全栅防护等级:IP30
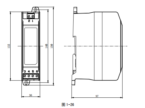
(7) 安全栅外形尺寸:150mm×97mm×36mm
结构特征、安装与布线
(1) 安全栅的外形示意图如图 1-26 所示。

(2) 安装:安全栅可以直接安装于宽度为 35mm 的标准 DIN 导轨,如图 1-27 所示。在不具备导轨 安装条件时,可以通过上下两个安装孔,使用 M4 螺钉或 ST4.2 自攻螺钉(可选配塑料膨胀 管)进行安装,如图 1-28 所示。

接线
安全栅端口通过插拔式端子(包括端子头和端子座)同其他设备连接,将电缆线安装在端 子头上后,端子头正确插在端子座上确定稳固连接即可。
端子说明 接线端子如图 1-29 所示。

Z1、Z2:非本安侧总线输入,无极性
D1、D2:DC24V 电源输入,无极性
ZO+、ZO-:本安侧总线输出
注意:安全栅应安装在安全区域,本安侧和非本安侧接线应分开,并保持一定距离(至少为 50mm)。
(5) 布线要求
信号总线 Z1、Z2 采用耐火 RVS 型双绞线,截面积≥1.0mm2 ;电源线 D1、D2 采用耐火 BV 线,截 面积≥1.5mm2 。安全栅至本安编码设备应选用截面积≥1.0mm2 的本安电缆,且电缆间分布电容不得 大于 0.083μF,分布电感不得大于 4.0mH。
应用方法
每个总线隔离式安全栅最多可配接 32 只本安编码设备,安全栅应用示意图如图 1-30 所示。



苏公网安备32058102002318号
客服1